Villa Aura: Il Respiro Sostenibile tra il Mare e il Borgo
Un rifugio esclusivo nel cuore pulsante di Guardistallo
Dove il Futuro incontra l’Autenticità Toscana
Immaginate di svegliarvi mentre la prima luce del mattino accarezza le colline di Guardistallo, tingendo d’oro la campagna che si fonde, all’orizzonte, con il blu profondo del Mar Tirreno. Non siete in un casale isolato e lontano dal mondo, ma in un’oasi di modernità e privacy, a pochi passi dai profumi di un borgo medievale vivo, dove il rito dell’espresso in piazza e il calore della comunità sono a portata di camminata.
Villa Aura non è solo una residenza; è un manifesto di un nuovo modo di vivere il lusso. Pensata per l’imprenditore o il professionista che non accetta compromessi, questa villa rappresenta l’equilibrio perfetto tra l’indipendenza totale e il comfort della vicinanza ai servizi, tra il rispetto per l’ambiente e la tecnologia più avanzata.
Consegna Estate 2027: Il Vostro Futuro Prende Forma
Attualmente in fase di costruzione, Villa Aura sarà pronta ad accogliervi per l’Estate 2027. Questo vi offre un vantaggio raro nel mercato di alto livello: la totale personalizzazione del progetto. Dalla distribuzione degli spazi interni alla scelta dei materiali di finitura, avrete l’opportunità di cucire la casa sui vostri desideri, con la certezza di una consegna programmata per la vostra prossima stagione di relax.
Eccellenza Green e Tecnologia “Gas-Free”
Progettata per superare gli standard della Classe Energetica A, Villa Aura è una casa “nativa green”:
- Indipendenza Energetica: Impianto fotovoltaico e pannelli solari di ultima generazione.
- Comfort Evoluto: Sistema di climatizzazione caldo/freddo ad alta efficienza.
- Etica Sostenibile: Una costruzione totalmente priva di gas, pensata per ridurre l’impronta ambientale senza rinunciare al massimo del comfort tecnologico.
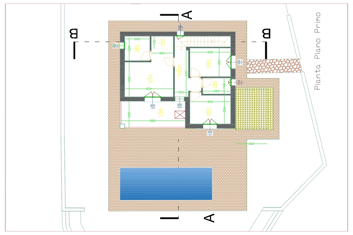
La Residenza: Spazi e Armonia
Sviluppata su 148 mq, la villa è un inno alla luce:
- Zona Living: Un open space scenografico con area relax e pranzo, connesso a un loggiato coperto perfetto per cene al fresco a bordo piscina.
- Master Suite: Al primo piano, una camera padronale con cabina armadio, bagno privato e una terrazza vista mare dove il panorama diventa un quadro quotidiano.
- Ospitalità: Altre due camere da letto e servizi dedicati per accogliere famiglia e amici nel massimo della riservatezza.
- Outdoor: Un giardino di 430 mq con carport per due auto e la possibilità di realizzare una piscina 8×3 mt(opzionale).
Logistica e Connessioni: Il Cuore della Toscana a Portata di Mano
Villa Aura vanta una posizione strategica, ideale per chi desidera una casa vacanze facilmente raggiungibile dai centri del Nord Italia o dai principali hub internazionali.
|
Destinazione |
Distanza |
Tempo Stimato |
|
Centro di Guardistallo (Servizi e Ristoranti) |
400 m |
5 min a piedi |
|
Spiagge di Marina di Bibbona / Cecina |
12 km |
15 min |
|
Stazione Ferroviaria (Cecina) |
12 km |
15 min |
|
Bolgheri (Viale dei Cipressi e Cantine) |
15 km |
20 min |
|
Volterra (Città d’Arte) |
30 km |
35 min |
|
Aeroporto Internazionale di Pisa (PSA) |
65 km |
45 min |
|
San Gimignano |
50 km |
1 ora |
|
Siena |
85 km |
1 ora 20 min |
|
Firenze |
110 km |
1 ora 30 min |
Dettagli Economici
- Richiesta: € 590.000
- Opzione Piscina (8x3mt): Supplemento di € 60.000
- Plus: Carport per due posti auto coperti incluso.
Iniziate oggi a scrivere il vostro prossimo capitolo in Toscana.
Villa Aura rappresenta la sintesi perfetta tra innovazione architettonica e fascino rurale. Non lasciatevi sfuggire l’opportunità di personalizzare la vostra dimora per l’Estate 2027.
Villa Aura è molto più di un immobile: è la cornice dove costruirete i ricordi della vostra famiglia, avvolti dalla bellezza della Toscana e dalla sicurezza di una costruzione all’avanguardia.
Siete pronti a vedere la vista mare dalla vostra nuova terrazza? Volete essere voi a dare l’ultimo tocco a questo capolavoro? Contattateci oggi stesso per una consulenza privata e per visionare il progetto in anteprima. Il vostro futuro in Toscana vi aspetta.




